6.5-Zimmer Haus im Zentrum von Mauren

Grosszügiges 6-Zimmer-Einfamilienhaus mit Doppelgarage, Balkon und Terrasse an zentraler Lage

Das im Jahr 1975 erstellte Wohnhaus überzeugt durch seine ruhige und dennoch zentrale Lage – in unmittelbarer Nähe zur Gemeinde, Schule, Post und Einkaufsmöglichkeiten.

Auf zwei Etagen verteilt, bietet das Haus eine Raumaufteilung mit insgesamt 6 Zimmern, einer grosszügigen Küche, zwei Badezimmern sowie diversen Nebenräumen (Waschküche, Abstellraum, Trockenraum).

Die Küche wurde 2015 komplett erneuert und präsentiert sich in modernem Design. Im Jahr 2025 wurde das gesamte Haus innen vollständig gestrichen, wodurch es in frischem Glanz erstrahlt. Zudem wurde das Badezimmer im Erdgeschoss renoviert.

Ein besonderes Highlight sind der sonnige Balkon und die grosse Terrasse, die zum Verweilen im Freien einladen. Ergänzt wird das Ganze durch eine Doppelgarage mit separatem Vorratskeller.

EG:

  • Eingang/Aufgang 19.2m2
  • Schlafzimmer 1  13m2
  • Badezimmer mit Dusche 4.3m2
  • Schlafzimmer 2 19.3m2
  • Trockenraum 13.9m2
  • Heizung/Waschküche 10.5m2
  • Garage 29m2

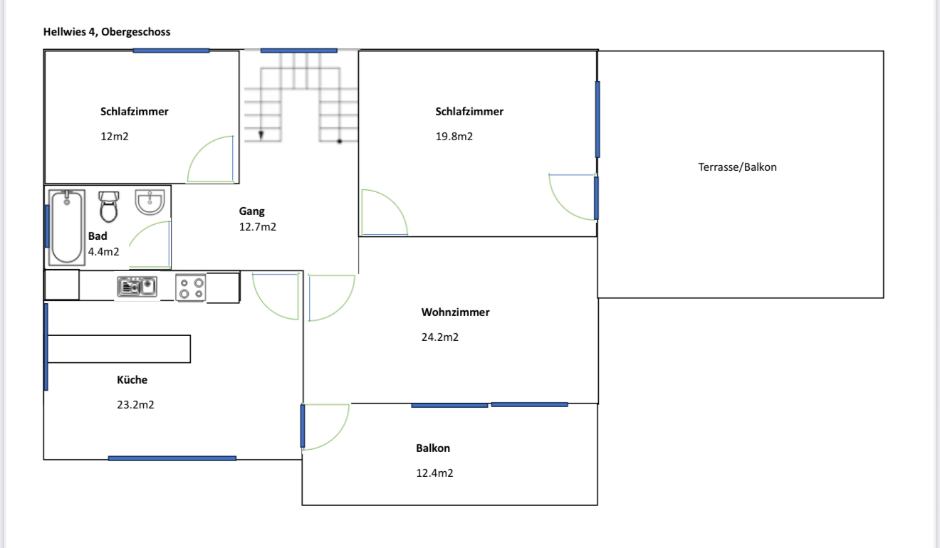
OG:

  • Gang 12.7m2
  • Schlafzimmer 3 12m2
  • Bad mit Badewanne 4.4m2
  • Küche/Esszimmer  23.2m2
  • Wohnzimmer 24.2m2
  • Schlafzimmer 4 19.8m2
  • Balkon 12.4m2
  • Terrasse/Balkon 29m2

2 Garagenplätze + 4 Aussenparkplätze

CHF 1‘950 Nettomiete (exkl. Nebenkosten)

Dieses Objekt eignet sich ideal für Familien oder Paare, die grosszügiges Wohnen an zentraler Lage schätzen.

Bei Interesse können Sie sich gerne an janette.hasler@outlook.com wenden. Es werden nur Anfragen beantwortet, welche das Anmeldeformular für Mietobjekt Hellwies ausgefüllt mitschicken.

Objektinformationen

Adresse:
Hellwies 4, 9493 Mauren
Objekttyp:
Einfamilienhaus
Grösse:
6.5 Zimmer
Fläche:
175m2m²
Verfügbar:
ab sofort
Parkplätze:
6
Baujahr:
1975
Renoviert:
2015/2025
Erstbezug:
nein
Distanz ÖV:
260m
Distanz Einkaufsmögl.:
100m

Preisinformationen

Kosten:
1950
Nebenkosten:
exkl. NK
Garagenplatz:
2
Aussenparkplatz:
4